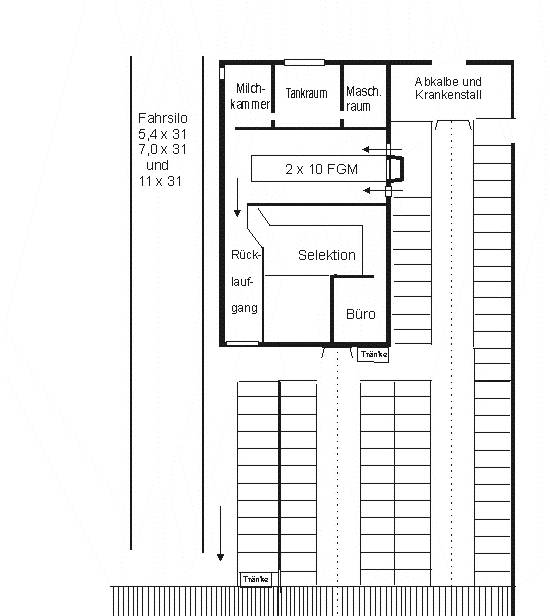
Der Grundriss vom Stall

Mit der Maus können Bilder aufgerufen werden

Aussenansicht von der Straße und der Weide Hier geht es zum Fahrsilo Platz für Geburten Die Übersicht  Aussenansicht Ein beliebter Platz Viel Wasser Viel Wasser Doppelreihe in derMitte Melkstand Selektion
Hier zeigen wir jedem wie ein moderner Boxenlaufstall von innen und aussen, aussieht. Wir erzeugen unsere Milch nach fortschrittlichen Methoden. Das bedeutet jede Kuh wird nach Bedarf gefüttert, dabei haben unsere Kühe dauernd Auslauf. Im Sommer können sie auf die Weide. Im Winter gehen sie an unsere Silos und holen dort ihr Futter. Mit Medikamenten wird nur dann behandelt wenn eine Krankheit diagnostiziert wurde. Natürlich trinken wir unsere eigene Milch, und selbstverständlich kennen wir unsere Kühe mit Namen.

Ich mach das schon!